Reformed country villa within walking distance of Coin town with a tourist licence and AFO
Near golf, Coin Centro, Coin, Malaga
615,000 € Updated 3 months ago
314 m² built, 5 bedrooms, 3 bathrooms, 2.151 m² plot, pool (private), garden (private)
5 bedrooms villa for sale in Coin Centro
Fully reformed and very spacious villa located on the edge of Coin town centre in a very private area. The location is wonderfully peaceful yet just a 10 minute walk to local shops and restaurants.
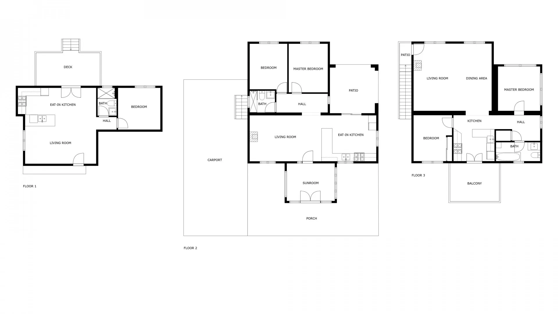
The house is distributed over two floors currently with completely separate entrances. On the ground floor is a two bedroom property with a bright open plan lounge and kitchen and an enclosed terrace for extra living space. Upstairs is another two bedroom property with an open plan lounge and kitchen and a large open terrace with wonderful views of the surrounding countryside. In addition to the main house is a separate one bedroom casita again with an open plan lounge and kitchen which leads onto a rear veranda overlooking the garden.
This superb property has a private pool, various fruit trees and ample private parking.
AFO and tourist licence are both in place and its closeness to town makes this an excellent investment as a holiday rental property or a large family home.
Property Details
- STRANDP7141
- Villa
- 5 Bedrooms
- 3 Bathrooms
- 314 m² Built
- 2.151 m² Plot
- 275 m² Interior
- Pool (Private)
- Garden (Private)
- Air conditioning
- Amenities near
- Automatic irrigation system
- Close to golf
- Close to schools
- Close to shops
- Close to town
- Country view
- Covered terrace
- Excellent condition
- Fireplace
- Fully fitted kitchen
- Garden view
- Guest apartment
- Internet - Wi-Fi
- Mountain view
- Mountainside
- Open plan kitchen
- Pool view
- Private terrace
- Storage room
- Transport near
- Uncovered terrace
Price, costs & taxes
| Asking price | 615,000 € |
|---|---|
| Built m² | 314 m² |
| Price per m² Built | 1.959 € |
| IBI | 1.182 € / year |
The sale price does not include expenses and taxes. Additional costs for the buyer: registration and notary fees, ITP (Transfer Tax) or in its absence VAT, and AJD (Stamp Duty) on new properties and subject to some requirements to be met. These costs and taxes are different depending on the province / autonomous community where the property is located and even on certain specific aspects of the buyer. All details and information sheet are available upon request from Strand Properties. This information is subject to errors, omissions, modifications, prior sale or withdrawal from the market.
About the building
| Year Built | 2004 |
|---|---|
| Floors | 2 |
| Property type | Villa |
| EPC | In process |
Listing agent
Strand Properties Real Estate agents in Coin +34676901519
Location
- Coin Centro
- Coin
- Malaga
Disclaimer This is a property advertisement (REF STRANDP7141) provided and maintained by Strand Properties, Avda. Playas de Duque, Edif. Málaga 1C 29660 Marbella - Puerto Banús Málaga, and does not constitute property particulars. Whilst we require advertisers to act with best practice and provide accurate information, we can only publish advertisements in good faith and have not verified any claims or statements or inspected any of the properties. lpaportal.com does not own or control and is not responsible for the properties,website content, products or services provided or promoted by third parties and makes no warranties or representations as to the accuracy, completeness, legality, performance or suitability of any of the foregoing. We therefore accept no liability arising from any reliance made by any reader or person to whom this information is made available to.
