Preciosa casa de campo en el corazón de Calvià
Calvià, Calvia, Islas Baleares
1.995.000 € Actualizada Hace 2 meses
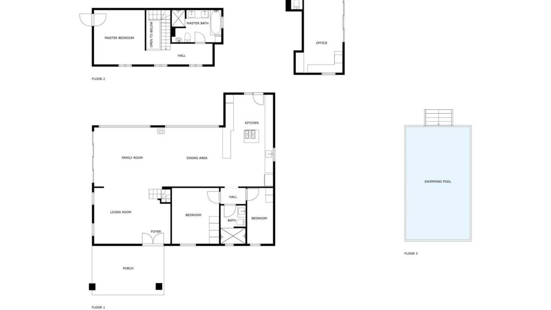
312 m² construidos, 4 dormitorios, 3 baños, 2.941 m² parcela, piscina (privado), jardín (privado), garaje (privado)
Se vende casa de 4 dormitorios en Calvià
Esta encantadora casa se encuentra en el corazón de Calvià. Disfrute de la total privacidad que ofrece la propiedad mientras admira las vistas a la montaña y el entorno natural. El moderno estilo rústico mallorquín, combinado con el diseño interior nórdico, lo convierte en el hogar perfecto y acogedor. La propiedad cuenta con una casa principal y una casa de invitados independiente, lo que garantiza una gran privacidad. Destacando la abundante luz natural en toda la vivienda gracias a las amplias ventanas y a su orientación sur, la cocina abierta, conectada con el comedor y el salón, crea una fantástica zona de ocio donde disfrutar en compañía y, al mismo tiempo, participar de las diferentes zonas de la casa. Los techos altos con vigas de madera a la vista hacen que cada estancia sea espaciosa y acogedora. La zona exterior es la guinda del pastel, con una increíble piscina de diseño, un exuberante césped verde y un gran porche con diferentes zonas de comedor y salón. Una de las características más originales es la pared de roca natural de montaña detrás de la casa: es como vivir en su propio parque natural privado. ¡Contáctenos para descubrir más detalles sobre su próxima casa!
Detalles de la propiedad
- SPCRM1048
- Casa
- 4 Dormitorios
- 3 Baños
- 2 en suite
- 312 m² Construidos
- 2.941 m² Parcela
- 248 m² Interior
- Piscina (Privado)
- Jardín (Privado)
- Garaje (Privado)
- Aire acondicionado
- Apartamento de invitados
- Apartamento independiente
- Armarios empotrados
- Aseo para invitados
- Barbacoa
- Cerca de la ciudad
- Chimenea
- Cocina equipada
- Comedor
- Completamente amueblado
- Cristal doble
- Depósito de agua
- Internet - Wi-Fi
- Oficina
- Paneles solares
- Pozo
- Próxima a la montaña
- Puertas de cristal
- Riego automático
- Sala de invitados
- Salón
- Suelos porcelánicos
- Terraza cubierta
- Terraza descubierta
- Vistas a la montaña
- Vistas a la piscina
- Vistas al campo
Precio, costes e impuestos
| Precio | 1.995.000 € |
|---|---|
| m² Construidos | 312 m² |
| Precio por m² Construido | 6.394 € |
El precio de venta no incluye gastos ni impuestos. Los gastos por cuenta del comprador serán: registro y honorarios notariales, Impuesto de transmisiones patrimoniales (ITP) o en su defecto Impuesto sobre el valor añadido, gastos jurídicos documentados (AJD) en propiedades nuevas y en propiedades sujetas a requisitos obligatorios. Estos costes e impuestos pueden ser diferentes, dependiendo de la provincia/comunidad autónoma en la que se encuentra la propiedad, así como según determinados aspectos del comprador. Puede solicitar todos los detalles y una información más completa enviando una solicitud a través del formulario de contacto Strand Properties. La siguiente información, puede estar sujeta a error, omision o modificaciones así como a la venta previa o retirada del mercado de la propiedad
Sobre la construcción
| Año de construcción | 2002 |
|---|---|
| Tipo de propiedad | Casa |
| EPC | In process |
Agente
Strand Properties Inmobiliarias en Calvia +34676901519
Localización
- Calvià
- Calvia
- Islas Baleares
Aviso legal Este es un anuncio inmobiliario (REF SPCRM1048) publicado y mantenido por Strand Properties, Avda. Playas de Duque, Edif. Málaga 1C 29660 Marbella - Puerto Banús Málaga, and does not constitute property particulars. Whilst we require advertisers to act with best practice and provide accurate information, we can only publish advertisements in good faith and have not verified any claims or statements or inspected any of the properties. lpaportal.com does not own or control and is not responsible for the properties,website content, products or services provided or promoted by third parties and makes no warranties or representations as to the accuracy, completeness, legality, performance or suitability of any of the foregoing. We therefore accept no liability arising from any reliance made by any reader or person to whom this information is made available to.
