Eleve su estilo de vida: Sofisticación con vistas al mar en el corazón de Cas Català
Cerca del golf, Cas Catala - Illetes, Calvia, Islas Baleares
1.590.000 € Actualizada Hace 2 meses
225 m² construidos, 4 dormitorios, 4 baños, 55 m² parcela, garaje (cochera)
Comprar apartamento en Cas Catala - Illetes con 4 dormitorios
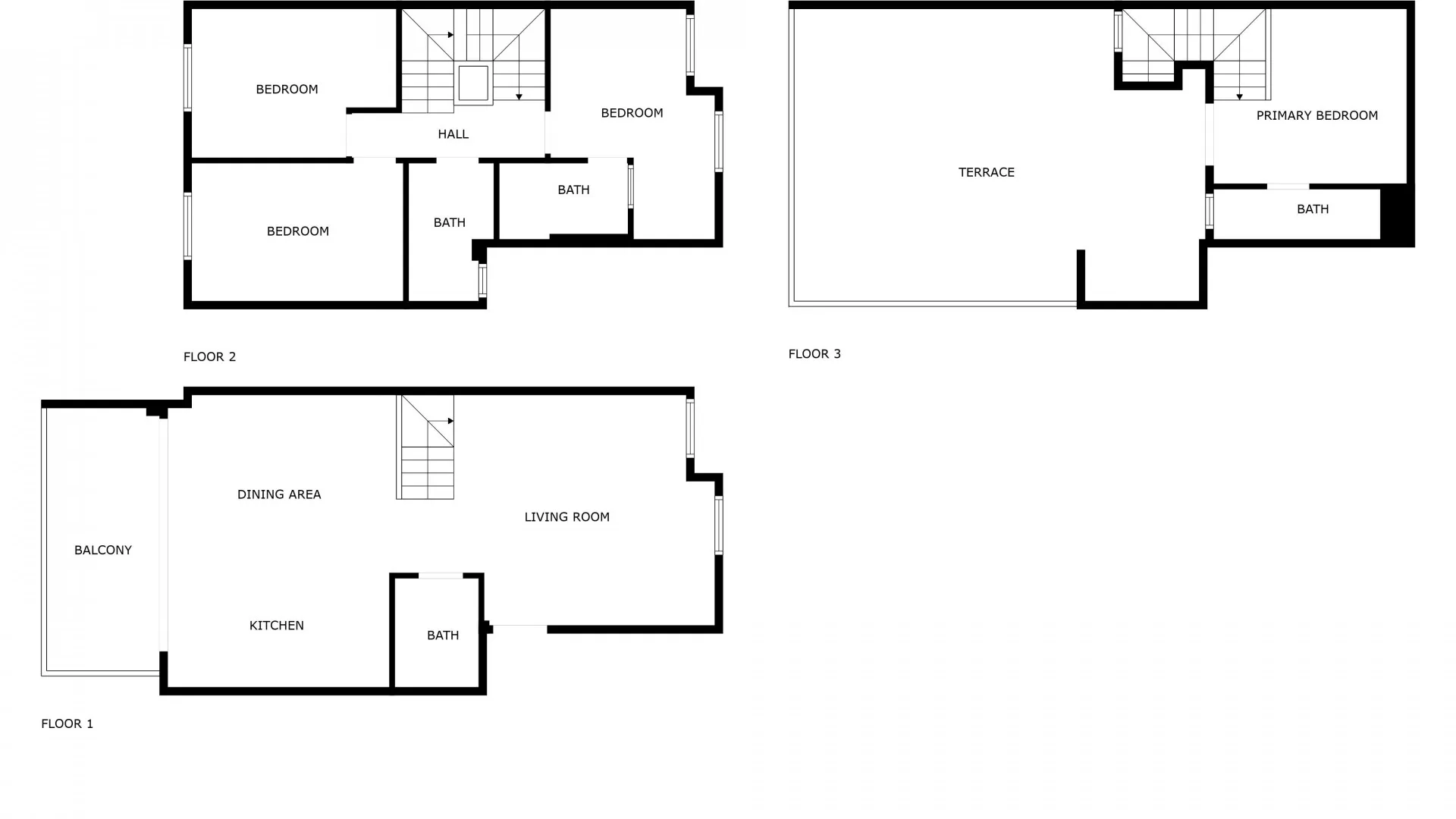
Descubra la refinada vida costera con este excepcional ático triplex en Carrer de Barranc. Con una superficie de 170 m², esta luminosa vivienda cuenta con cuatro amplios dormitorios con armarios empotrados y aire acondicionado, y cuatro lujosos cuartos de baño con calefacción por suelo radiante. El salón-comedor de planta abierta da a una terraza de 12 m² con impresionantes vistas al mar, mientras que la cocina de diseño cuenta con electrodomésticos Gaggenau de primera calidad, acabados de roble y una encimera de mármol Binissalem sobre elegantes suelos de piedra natural Zarci. En la planta superior, tres dormitorios dos con impresionantes vistas al mar se complementan con dos baños de inspiración spa. La planta superior ofrece un versátil salón o suite de invitados, que se abre a una espectacular terraza de 40 m² en la azotea con una cocina al aire libre, zona de comedor y vistas panorámicas, perfecta para el entretenimiento o relajarse bajo el sol mallorquín. Las comodidades modernas incluyen funciones de hogar inteligente, un sistema de música Sonos, climatización y dos plazas de aparcamiento privadas, además de un trastero de 15 m². Esta es la mezcla definitiva de Cas Català de estilo, comodidad y lujo frente al mar.
Detalles de la propiedad
- SPCRM3353
- Apartamento
- 4 Dormitorios
- 4 Baños
- 225 m² Construidos
- 55 m² Parcela
- 170 m² Interior
- 55 m² Terraza
- Garaje (Cochera)
- Aire acondicionado
- Armarios empotrados
- Ascensor
- Calefacción central
- Cerca de la ciudad
- Cerca de playa / mar
- Cerca del golf
- Cerca del puerto
- Colegios cerca
- Comedor
- Cristal doble
- Lado Playa
- Muebles opcionales
- Parque infantil cercano
- Próxima a la montaña
- Puertas de cristal
- Sala de invitados
- Salón
- Servicios cercanos
- Terraza cubierta
- Terraza descubierta
- Terraza privada
- Tiendas cerca
- Transporte cercano
- Vistas a la calle
- Vistas a la montaña
- Vistas al mar
- Vistas panorámicas
- Vistas urbanas
Precio, costes e impuestos
| Precio | 1.590.000 € |
|---|---|
| m² Construidos | 225 m² |
| Precio por m² Construido | 7.067 € |
El precio de venta no incluye gastos ni impuestos. Los gastos por cuenta del comprador serán: registro y honorarios notariales, Impuesto de transmisiones patrimoniales (ITP) o en su defecto Impuesto sobre el valor añadido, gastos jurídicos documentados (AJD) en propiedades nuevas y en propiedades sujetas a requisitos obligatorios. Estos costes e impuestos pueden ser diferentes, dependiendo de la provincia/comunidad autónoma en la que se encuentra la propiedad, así como según determinados aspectos del comprador. Puede solicitar todos los detalles y una información más completa enviando una solicitud a través del formulario de contacto Strand Properties. La siguiente información, puede estar sujeta a error, omision o modificaciones así como a la venta previa o retirada del mercado de la propiedad
Sobre la construcción
| Plantas | 4 |
|---|---|
| Niveles | 4 |
| Tipo de propiedad | Apartamento |
| EPC | In process |
Agente
Strand Properties Inmobiliarias en Calvia +34676901519
Localización
- Cas Catala - Illetes
- Calvia
- Islas Baleares
Aviso legal Este es un anuncio inmobiliario (REF SPCRM3353) publicado y mantenido por Strand Properties, Avda. Playas de Duque, Edif. Málaga 1C 29660 Marbella - Puerto Banús Málaga, and does not constitute property particulars. Whilst we require advertisers to act with best practice and provide accurate information, we can only publish advertisements in good faith and have not verified any claims or statements or inspected any of the properties. lpaportal.com does not own or control and is not responsible for the properties,website content, products or services provided or promoted by third parties and makes no warranties or representations as to the accuracy, completeness, legality, performance or suitability of any of the foregoing. We therefore accept no liability arising from any reliance made by any reader or person to whom this information is made available to.
