Wonderful rustic property with 3 bedroom home on a 1920 m2 plot.
Cartama, Malaga
275,000 €
156 m² built, 3 bedrooms, 1 bathrooms, 1.928 m² plot, garden (private), garage (private)
Finca with 3 bedrooms for sale in Cartama
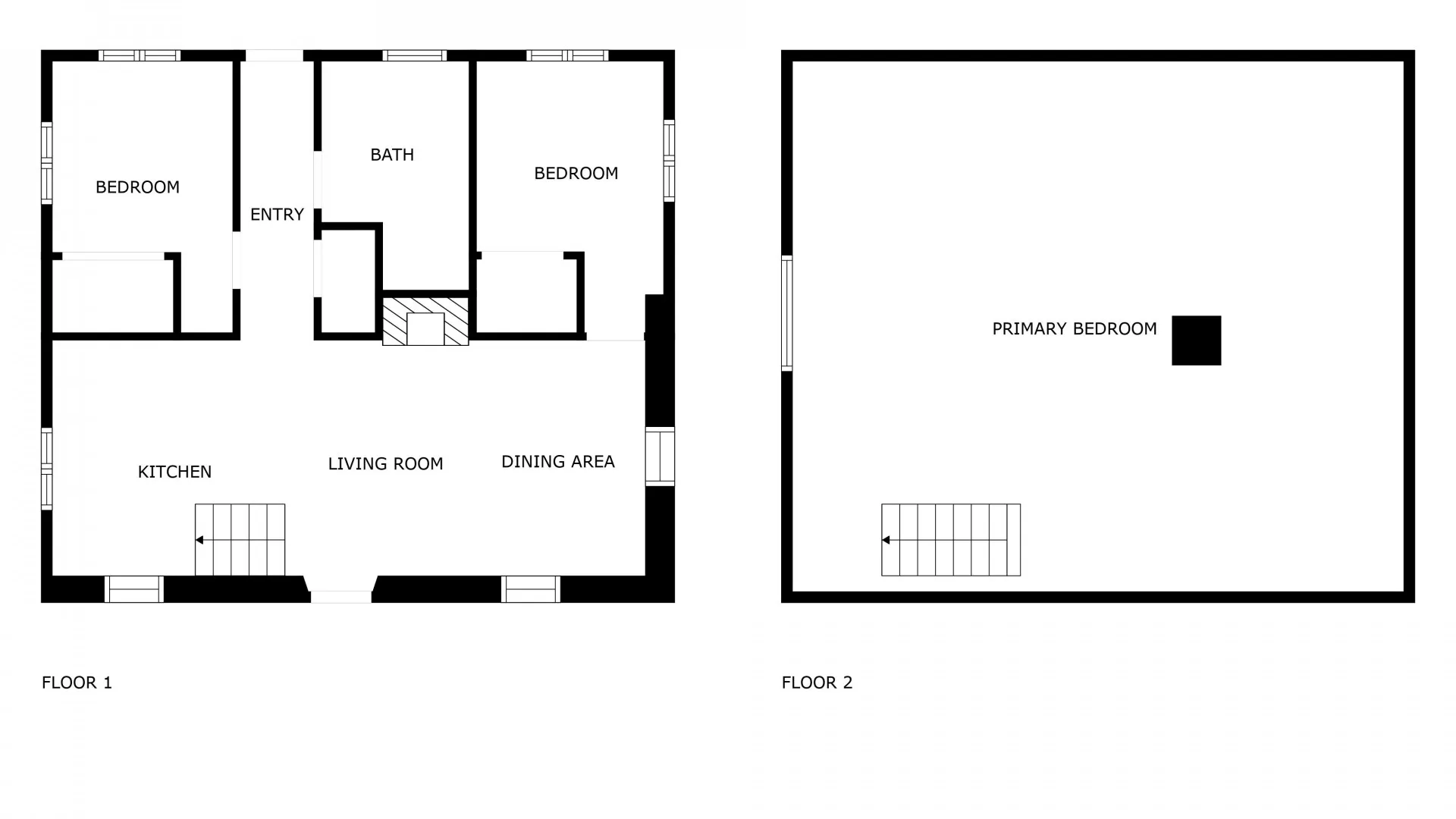
Fantastic investment opportunity: A beautiful and welcoming renovated country house nestled on a 1927 sq m fenced plot in the Rio Grande area of Cártama. The house has a living area of 156 sq m spread over two floors with three spacious bedrooms, a full indoor bathroom with shower, and an outdoor composting toilet. The second floor is an open-plan attic space with a large 65 sq m room (which could be divided into more rooms) featuring solid Finnish red pine flooring and ceilings. There is also a laundry/storage room, a living room with a highly efficient cassette fireplace and a sash and hinged door, a large kitchen, tilt-and-turn PVC windows with double glazing, thick walls for excellent thermal insulation, and a carefully curated Andalusian rustic style that brings a touch of warmth and freshness to every room. The house has a high-power (three-phase) electrical supply equipped for fast charging of electric vehicles. Located in an idyllic natural setting, this property offers tranquility and wonderful unobstructed views of the Guadalhorce Valley, just 5 minutes from the Málaga-Pizarra road and 15 minutes from the regional hospital. It is easily accessible from Málaga, Pizarra, Coín, Villafranco, Cerralba, and Cártama Pueblo. If you are looking to live or invest in a unique, peaceful environment with easy access to the city, don’t hesitate to visit this property.
Property Details
- SPCRM3463
- Finca
- 3 Bedrooms
- 1 Bathrooms
- 156 m² Built
- 1.928 m² Plot
- Garden (Private)
- Garage (Private)
- Country view
- Living room
- Mountain view
- Panoramic view
Price, costs & taxes
| Asking price | 275,000 € |
|---|---|
| Built m² | 156 m² |
| Price per m² Built | 1.763 € |
| IBI | 327 € / year |
The sale price does not include expenses and taxes. Additional costs for the buyer: registration and notary fees, ITP (Transfer Tax) or in its absence VAT, and AJD (Stamp Duty) on new properties and subject to some requirements to be met. These costs and taxes are different depending on the province / autonomous community where the property is located and even on certain specific aspects of the buyer. All details and information sheet are available upon request from Strand Properties. This information is subject to errors, omissions, modifications, prior sale or withdrawal from the market.
About the building
| Year Built | 2002 |
|---|---|
| Floors | 2 |
| Levels | 2 |
| Property type | Finca |
| EPC | In process |
Listing agent
Strand Properties Real Estate agents in Cartama +34676901519
Location
- Cartama
- Malaga
Disclaimer This is a property advertisement (REF SPCRM3463) provided and maintained by Strand Properties, Avda. Playas de Duque, Edif. Málaga 1C 29660 Marbella - Puerto Banús Málaga, and does not constitute property particulars. Whilst we require advertisers to act with best practice and provide accurate information, we can only publish advertisements in good faith and have not verified any claims or statements or inspected any of the properties. lpaportal.com does not own or control and is not responsible for the properties,website content, products or services provided or promoted by third parties and makes no warranties or representations as to the accuracy, completeness, legality, performance or suitability of any of the foregoing. We therefore accept no liability arising from any reliance made by any reader or person to whom this information is made available to.
